คำอธิบายผลิตภัณฑ์
A 50- ตันคานคู่ (คานคู่) เครนตั้งอยู่ในสายการบินเป็นระบบยกงานหนักที่ออกแบบมาสำหรับการใช้งานกลางแจ้งหรือกึ่งอวกาศซึ่งไม่มีโครงสร้างการสนับสนุนค่าใช้จ่ายอยู่ มีการใช้กันอย่างแพร่หลายในอุตสาหกรรมสำหรับการเคลื่อนย้ายโหลดขนาดใหญ่หนักอย่างมีประสิทธิภาพและปลอดภัย
ส่วนประกอบหลัก: เครื่องยนต์, แบริ่ง, กระปุกเกียร์, มอเตอร์, เกียร์
สถานที่ต้นกำเนิด: เหอหนาน, จีน
รับประกัน: 2 ปี
น้ำหนัก (กิโลกรัม): 50000 กก.
การตรวจสอบวิดีโอออกมา: ให้บริการ
รายงานการทดสอบเครื่องจักร: มีให้
แอปพลิเคชั่น: กลางแจ้ง
คำสำคัญ: เครนสำหรับตั้งสิ่งของ
ความสามารถในการโหลดอันดับ: 50 ตัน
ความเร็วในการเดินทางข้าม: 44.6m\/นาที
ความเร็วในการเดินทางไกล: 47.1m\/นาที
วิธีการควบคุม: ห้องโดยสาร
แหล่งจ่ายไฟ: รีลสายเคเบิล
แทร็กเหล็ก: QU80
Power: 3- เฟส AC 50Hz 380V

รูปภาพและส่วนประกอบ
1. ลำแสง
โครงสร้างและการออกแบบ
การกำหนดค่าลำแสงสองครั้ง:
คานหลักสองเส้นขนานวิ่งข้ามช่วงของเครนโครงสำหรับตั้งรกราก
กล่องคานกล่อง (พบมากที่สุด):
โครงสร้างเหล็กสี่เหลี่ยมหรือแบบเชื่อมให้ความแข็งแรงสูงและแรงบิด - จำเป็นสำหรับการโหลด 50- ตัน
วัสดุ:
เหล็กโครงสร้างที่มีความแข็งแรงสูง (เช่น Q345B หรือ S355) สำหรับความสามารถในการโหลดที่เพิ่มขึ้นและความต้านทานต่อความล้า
มาตรฐานการออกแบบ:
ตามมาตรฐาน FEM, DIN หรือ ISO สำหรับการรับน้ำหนักขีด จำกัด การโก่งตัวและคุณภาพการเชื่อม
2. ระบบยก
1) กลไกรอก (หน่วยยกหลัก)
พิมพ์:
โดยปกติจะใช้รอกแบบ winch (ไม่ใช่สายไฟเชือกลวด) เนื่องจากความจุหนัก (50 ตัน)
การกำหนดค่า:
ติดตั้งบนรถเข็นที่วิ่งไปตามด้านบนของคานคู่
โครงสร้างรวมถึง:
มอเตอร์ยก
กลอง
เชือกลวด
ลูกรอก
การประกอบเบ็ด
ระบบเบรก
กล่องเกียร์\/ลด
2) การยกมอเตอร์และไดรฟ์
ประเภทมอเตอร์:
3- กรงกระรอกเฟสหรือมอเตอร์แหวนสลิปมักจะรวมกับตัวแปลงความถี่ (VFD) สำหรับการควบคุมความเร็ว
คุณสมบัติ:
แรงบิดเริ่มต้นสูง
การเร่งความเร็วและการชะลอตัวที่ราบรื่น
การป้องกันความร้อนสูงเกินไป
ชั้นเรียนฉนวน F หรือ H
3) ลวดเชือกและกลอง
เชือกลวด:
เชือกเหล็กที่มีความแข็งแรงสูงและต่อต้านการเคลือบด้วยการหล่อลื่นและการเคลือบป้องกันการกัดกร่อน
กลอง:
กลองเหล็กร่องช่วยให้มั่นใจได้ว่าเชือกลวดที่เหมาะสมจะคดเคี้ยวด้วยการสึกหรอน้อยที่สุด
อัตราส่วนความปลอดภัย:
Usually a >5: 1 ปัจจัยด้านความปลอดภัยสำหรับลวดเชือกเทียบกับโหลดที่ได้รับการจัดอันดับ
4) Hook & Pulley Block
วัสดุขอ:
เหล็กปลอม (เกรด 34crnimo6 หรือเทียบเท่า) พร้อมกับสลักนิรภัย
ตะขอหมุน:
สามารถหมุน 360 องศาเพื่อให้สอดคล้องกับทิศทางการโหลด
ระบบรอก:
บล็อกหลายป้องกันเพื่อกระจายโหลดและลดความเครียดในการยก
![]() |
![]() |
3. สิ้นสุดรถม้า
การออกแบบโครงสร้าง
โครงสร้างรอยเชื่อมแบบกล่อง:
ประดิษฐ์จากแผ่นเหล็กที่มีความแข็งแรงสูงพร้อมรอยเชื่อมเต็มรูปแบบทำให้มั่นใจได้ถึงความทนทานภายใต้โหลดสูง
การเชื่อมต่อกับคานหลัก:
สลักเกลียวหรือเชื่อมอย่างแน่นหนาไปที่ปลายทั้งสองของคานหลักสองเท่าทำให้เกิดเฟรมแข็ง
รองรับขาเครน:
สำหรับรถเครนเต็มรูปแบบรถม้าท้ายจะติดตั้งบนขารองรับ; สำหรับกึ่งไพเราะมีเพียงด้านเดียวเท่านั้นที่มีขา
![]() ![]() |
4. กลไกการเดินทาง
Crane Wheels: ล้อเหล็กปลอม
มอเตอร์ขับเคลื่อน: มอเตอร์หนักสำหรับการเคลื่อนไหวตามยาว
Gear Reducer: รวมเข้ากับมอเตอร์สำหรับการควบคุมแรงบิดและการเคลื่อนไหวที่ราบรื่น
เพลาขับ: เชื่อมต่อมอเตอร์เข้ากับล้อ (ถ้าใช้ไดรฟ์ที่ไม่ได้เป็นอิสระ)
ระบบหนีบทางรถไฟ: สร้างความมั่นใจในความมั่นคงและป้องกันไม่ให้เครนถูกยกขึ้นโดยลม
ระบบบัฟเฟอร์: กันชนยางหรือโพลียูรีเทนเมื่อสิ้นสุดขีด จำกัด การเดินทาง
ขีด จำกัด สวิตช์: ป้องกันการเดินทางไกลและการชนที่อาจเกิดขึ้น
รางรถไฟ: วางบนพื้นดิน\/รองพื้นโดยทั่วไป 38–50 กิโลกรัม\/เมตรโปรไฟล์รางรถไฟ
5. กลไกการเดินทางของ Trolley
กรอบรถเข็น: โครงสร้างเหล็กเชื่อมที่รองรับกลไกการยก
ล้อเดินทาง: ล้อเหล็กชุบแข็งวิ่งบนรางที่ติดตั้งบนคานหลัก
Travel Drive Motor: Motor + Gearbox เพื่อขับล้อรถเข็น
ตัวลดเกียร์: ส่งพลังงานมอเตอร์ไปยังล้อที่ความเร็วและแรงบิดควบคุม
Guide Rollers: ป้องกันการแกว่งด้านข้างและให้รถเข็นจัดเรียงบนรางรถไฟ
ระบบรถไฟ: แท่งแบนหรือรางสี่เหลี่ยมที่ติดตั้งอยู่ด้านบนของคานแต่ละอัน
ขีด จำกัด สวิตช์: ป้องกันการเดินทางข้ามเส้นทางและการชนที่อาจเกิดขึ้นที่ปลายทั้งสองลำแสง

7.
ชุดประกอบบล็อกเบ็ด
ตะขอถูกรวมเข้ากับบล็อกตะขอซึ่งรวมถึง:
Pulley Sheaves: ล้อหลายล้อเพื่อชี้นำเชือกลวด
แบริ่ง: สำหรับการหมุนที่ราบรื่น
แผ่นด้านข้าง: แผ่นงานหนักที่ล้อมรอบระบบรอก
Hook Nut\/Locking System: ป้องกันการคลายตะขอภายใต้โหลด
คานอีควอไลเซอร์ (ถ้าเบ็ดคู่): สำหรับการยกที่สมดุลของโหลดที่ไม่สม่ำเสมอ

8. มอเตอร์
คุณสมบัติที่สำคัญ
ระดับหน้าที่:
โดยทั่วไปแล้วมอเตอร์จะได้รับการจัดอันดับ S3 (หน้าที่ไม่ต่อเนื่อง) หรือ S4 (หน้าที่วงจร) สำหรับเครน
ชั้นฉนวน:
คลาส F หรือ H เหมาะสำหรับการทำงานที่มีอุณหภูมิสูงและหนัก
เกรดการป้องกัน:
อย่างน้อย IP54 - IP65, ป้องกันฝุ่นและน้ำเข้า
การรวมเบรก:
การยกมอเตอร์มาพร้อมกับเบรกแม่เหล็กไฟฟ้าหรือไฮดรอลิก
วิธีการระบายความร้อน:
บ่อยครั้งที่ระบายความร้อนด้วยตนเองกับแฟน ๆ โดยเฉพาะอย่างยิ่งสำหรับการใช้งานต่อเนื่อง
ประเภทการติดตั้ง:
ติดตั้งหน้าแปลน (สำหรับการกำหนดค่าขนาดกะทัดรัด)
ติดตั้งบนเท้า (เพื่อการบำรุงรักษาง่าย)

.
9. ระบบเสียงและสัญญาณเตือนแสงและสวิตช์ จำกัด
1) ระบบเสียงและสัญญาณเตือนแสง
ระบบนี้ให้การแจ้งเตือนด้วยเสียงและการมองเห็นเพื่อเตือนคนงานและผู้ประกอบการใกล้เคียงในระหว่างการดำเนินการเครนปรับปรุงความปลอดภัยและช่วยป้องกันอุบัติเหตุ
2) สวิตช์ จำกัด
สวิตช์ จำกัด คือเซ็นเซอร์เชิงกลหรือความใกล้ชิดที่หยุดหรือย้อนกลับการเคลื่อนที่ของส่วนประกอบเครนเพื่อหลีกเลี่ยงความเสียหายทางกลหรือกลไก

10. อุปกรณ์ความปลอดภัย
1) อุปกรณ์ป้องกันโอเวอร์โหลด
ฟังก์ชั่น: ป้องกันการยกมากกว่าความจุที่จัดอันดับ (50T)
ประเภท: เซ็นเซอร์โหลดเซลล์, เซ็นเซอร์ความดันไฮดรอลิกหรือรีเลย์โอเวอร์โหลดอิเล็กทรอนิกส์
การดำเนินการ: หยุดการยกและทริกเกอร์สัญญาณเตือนถ้าโอเวอร์โหลด
2) สวิตช์ขีด จำกัด การยก (บนและล่าง)
ฟังก์ชั่น: ป้องกันไม่ให้เบ็ดยกสูงเกินไปหรือลดลงไกลเกินไป
ประเภท: ลูกเบี้ยวโรตารี่, แขนคันโยกหรือสวิตช์ความใกล้ชิด
ผลประโยชน์ด้านความปลอดภัย: ปกป้องรอกและกลองจากความเสียหายเนื่องจากเชือก over-wrap หรือ slack
3) สวิตช์ขีด จำกัด การเดินทาง
ฟังก์ชั่น: หยุดรถเข็นและรถเครนในตอนท้ายของเส้นทางการเดินทาง
สถานที่: ติดตั้งที่ปลายของรถไฟคาน (รถเข็น) และรันเวย์ (เครน)
การดำเนินการ: ตัดกำลังมอเตอร์เดินทางเพื่อป้องกันการชนกันโดยหยุดสิ้นสุด
4) ระบบเสียงและสัญญาณเตือนแสง
ฟังก์ชั่น: ให้คำเตือนด้วยเสียงและภาพระหว่างการดำเนินการเครน
ส่วนประกอบ: สัญญาณไฟ LED กระพริบ + ไซเรน (85–110 เดซิเบล)
ถูกกระตุ้นโดย: การยกการเดินทางการเดินทางฉุกเฉินหรือการตรวจจับความผิดพลาด
5) ระบบความเร็วลมและระบบล็อคพายุ
สำหรับรถเครนกลางแจ้ง
เซ็นเซอร์ความเร็วลม: เตือนว่าลมเกินขีด จำกัด การทำงานที่ปลอดภัยหรือไม่
ล็อคพายุ (แคลมป์ราง): กลไกล็อคเครนไปยังรางเพื่อป้องกันการเคลื่อนไหวในช่วงลมแรงหรือปิดตัวลง
11. โหมดควบคุม
1) การควบคุมจี้
คำอธิบาย:
แผงควบคุมแบบใช้สายมือถือเชื่อมต่อด้วยสายเคเบิลไปยังเครน
คุณสมบัติ:
ปุ่มหรือ Joysticks สำหรับฟังก์ชั่นปั้นจั่นทั้งหมด: Hoisting, Trolley Travel, Crane Travel
ปุ่มหยุดฉุกเฉิน
ทนทานกันน้ำและออกแบบตามหลักสรีรศาสตร์
ข้อดี:
ผู้ประกอบการใกล้กับพื้นที่โหลดเพื่อการมองเห็นที่ดีขึ้น
ง่ายและเชื่อถือได้ด้วยการรบกวนน้อยที่สุด
2) การควบคุมระยะไกลวิทยุ (การควบคุมไร้สาย)
คำอธิบาย:
เครื่องส่งสัญญาณมือถือไร้สายช่วยให้ผู้ประกอบการอิสระสามารถเคลื่อนที่ไปรอบ ๆ เครนได้
คุณสมบัติ:
จอยสติ๊กหรือปุ่มกดมัลติฟังก์ชั่น
สวิตช์หยุดฉุกเฉิน
ช่วง 50–200 เมตรหรือมากกว่า
ตัวบ่งชี้ LED สำหรับความแรงของสัญญาณและสถานะแบตเตอรี่
ข้อดี:
ปรับปรุงการมองเห็นและความปลอดภัยของผู้ปฏิบัติงาน
กำจัดอันตรายจากสายเคเบิลอุปสรรค์
เหมาะสำหรับการดำเนินงานกลางแจ้งหรือขนาดใหญ่
3) การควบคุมห้องโดยสาร (ห้องโดยสาร)
คำอธิบาย:
ห้องโดยสารที่ล้อมรอบติดตั้งอยู่บนเครนหรือขั้วต่อซึ่งผู้ประกอบการนั่งควบคุมเครน
คุณสมบัติ:
คอนโซลควบคุมเต็มรูปแบบพร้อมคันโยกปุ่มและการแสดงผล
การควบคุมสภาพอากาศ (AC\/ความร้อน)
ทัศนวิสัยที่ดีกับหน้าต่างขนาดใหญ่และบางครั้งระบบกล้อง
ระบบการสื่อสาร
ข้อดี:
สะดวกสบายสำหรับการเปลี่ยนแปลงที่ยาวนาน
ป้องกันสภาพอากาศและฝุ่น
เหมาะสำหรับการควบคุมที่แม่นยำในการดำเนินงานที่ซับซ้อน
4) การควบคุมแบบกึ่งอัตโนมัติ \/ อัตโนมัติ (ไม่บังคับ)
คำอธิบาย:
การรวม PLC (ตัวควบคุมตรรกะที่ตั้งโปรแกรมได้) และระบบอัตโนมัติเพื่อควบคุมงานซ้ำ ๆ
คุณสมบัติ:
ลำดับการยกและลำดับการเดินทางล่วงหน้า
ความปลอดภัยประสานและสัญญาณเตือน
การตรวจสอบระยะไกลและการวินิจฉัย
ข้อดี:
เพิ่มประสิทธิภาพการดำเนินงาน
ลดความเหนื่อยล้าของผู้ปฏิบัติงาน
มั่นใจได้ว่าคุณภาพการยกที่สอดคล้องกัน

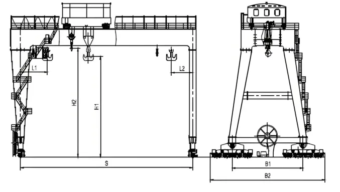
12.Sketch

เทคนิคหลัก

ข้อดี
1. ความสามารถในการโหลดสูงและความแข็งแรงของโครงสร้าง
ออกแบบมาเพื่อรองรับการโหลดหนักมากถึง 50 ตันอย่างน่าเชื่อถือ
โครงสร้างคานคู่มีความเสถียรมากขึ้นการกระจายโหลดและความต้านทานการดัดเมื่อเทียบกับรุ่นคานเดี่ยว
เหมาะอย่างยิ่งสำหรับการยกหนักบ่อยหรือต่อเนื่อง
2. ช่วงกว้างและพื้นที่ครอบคลุมขนาดใหญ่
เหมาะสำหรับการดำเนินงานที่กว้างในหลากลางแจ้งหรือเวิร์กช็อปขนาดใหญ่
สามารถครอบคลุมพื้นที่ทำงานขนาดใหญ่โดยไม่จำเป็นต้องมีโครงสร้างการรองรับอาคาร
3. ประสิทธิภาพการดำเนินงานที่เพิ่มขึ้น
ความสูงของการยกสูงและช่วงการทำงานที่กว้าง
การรอกอย่างรวดเร็วการเดินทางของรถเข็นและความเร็วในการเดินทางของเครน
ลดเวลาในการจัดการวัสดุอย่างมีนัยสำคัญเมื่อเทียบกับรถยกหรือรถเครนมือถือ
4. การรวมระบบความปลอดภัยเต็มรูปแบบ
พร้อมกับขีด จำกัด เกินพิกัดสวิตช์ขีด จำกัด การเดินทางหยุดฉุกเฉินระบบเบรกและล็อคลม (สำหรับการใช้งานกลางแจ้ง)
ปรับปรุงความปลอดภัยในสถานที่ทำงานและลดความเสี่ยงของความเสียหายหรือการบาดเจ็บ
5. โหมดการควบคุมที่ยืดหยุ่น
เสนอการควบคุมจี้, การควบคุมระยะไกลวิทยุหรือการทำงานของห้องโดยสารขึ้นอยู่กับสภาพการทำงาน
กึ่งอัตโนมัติเสริมหรือระบบอัตโนมัติเต็มรูปแบบสำหรับงานซ้ำ ๆ
6. ปรับแต่งได้สำหรับแอปพลิเคชัน
ปรับได้ในแง่ของช่วงความสูงยกฐานล้อและความเร็ว
สามารถติดตั้งตะขอที่กำหนดเองแม่เหล็กคว้าหรือยกคานขึ้นอยู่กับประเภทวัสดุ (เช่นเหล็กคอนกรีตคอนกรีต)
แอปพลิเคชัน
1. การผลิตหนัก
การใช้งาน: การจัดการชิ้นส่วนเครื่องจักรขนาดใหญ่โครงสร้างเหล็กแม่พิมพ์แม่พิมพ์ตายและชุดประกอบ
อุตสาหกรรม: การผลิตเครื่องจักร, โรงงานอุปกรณ์หนัก, การประชุมเชิงปฏิบัติการโครงสร้างโลหะ
2. โรงงานเหล็กและโรงหล่อ
การใช้งาน: การเคลื่อนย้ายแผ่นเหล็ก, บิลเล็ต, ขดลวด, แท่งและผลิตภัณฑ์เหล็กสำเร็จรูป
ทำไมต้องเป็นเครนตั้งสิ่งของ: จัดการวัสดุที่ร้อนแรงและผิดปกติในสภาพแวดล้อมที่ยากลำบาก
3. คอนกรีตสำเร็จรูปและการก่อสร้าง
แอปพลิเคชัน: การยกและการขนส่งคานสำเร็จรูปบล็อกคอนกรีตเซ็กเมนต์ส่วนสะพานและคอลัมน์
อุตสาหกรรม: การก่อสร้างสะพาน, โรงงานสำเร็จรูป, หลาส่วนอุโมงค์
4. อู่ต่อเรือและอุตสาหกรรมทางทะเล
แอปพลิเคชัน: การประกอบชิ้นส่วนเรือ, การยกส่วนฮัลล์, เครื่องยนต์หรือส่วนประกอบขนาดใหญ่อื่น ๆ
การตั้งค่า: มักใช้ตามลื่นหรือท่าเทียบเรือที่มีความครอบคลุมขนาดใหญ่
5. หลาโลจิสติกส์และพอร์ต
แอปพลิเคชัน: การจัดการคอนเทนเนอร์การโหลดสินค้า\/การขนถ่ายในหลารถไฟหรือเทอร์มินัลพอร์ต
ข้อได้เปรียบ: ความจุสูงและความคล่องตัวทำให้เหมาะสำหรับพื้นที่เก็บสัมภาระจำนวนมากกลางแจ้ง
6. โรงไฟฟ้าและภาคพลังงาน
การใช้งาน: การเคลื่อนย้ายกังหันหนักเครื่องกำเนิดไฟฟ้าหม้อแปลงและส่วนประกอบการบำรุงรักษา
ใช้กรณี: จำเป็นสำหรับการจัดการอุปกรณ์ไฟฟ้าขนาดใหญ่และละเอียดอ่อน
7. หลารถไฟ
แอพพลิเคชั่น: การยกและวางรางรถไฟล้อ bogies และส่วนประกอบหนัก
ทำไมต้องตั้งสิ่งของ: ทำงานโดยไม่มีโครงสร้างค่าใช้จ่ายคงที่เหมาะสำหรับการดำเนินงานด้านรถไฟ
ปั้นจั่นการผลิต ขั้นตอน
1. การเตรียมวัตถุดิบ
เลือกเหล็ก Q235B\/Q345B ที่มีความแข็งแรงสูงสำหรับส่วนประกอบโครงสร้าง
ตรวจสอบและทดสอบวัตถุดิบทั้งหมดเพื่อการปฏิบัติตามคุณภาพ (การทดสอบทางเคมีและเชิงกล)
ตัดคานและเพลตให้เป็นขนาดที่ต้องการโดยใช้เครื่องตัด CNC
2. การประดิษฐ์คานหลัก
รูปแบบกล่องรูปทรงกล่องหรือรูปตัวยูจากแผ่นเหล็กตัดก่อน
การเชื่อมอาร์คที่จมอยู่ใต้น้ำอัตโนมัติ (SAW) สำหรับตะเข็บตามยาว
ไดอะแฟรมภายในและเครื่องทำให้แข็งนั้นเชื่อมภายในกล่องเพื่อเสริมแรง
ตะเข็บการเชื่อมทั้งหมดได้รับการตรวจสอบด้วยการทดสอบอัลตราโซนิกและการถ่ายภาพรังสี
3. การผลิตรถยนต์สิ้นสุด
ตัดและเครื่องจักรคานรถบรรทุกปลาย
ล้อ Mount Crane, ตัวเรือนแบริ่งและกล่องเกียร์
พื้นผิวการเชื่อมต่อทั้งหมดได้รับการบดเพื่อการจัดตำแหน่งที่แม่นยำด้วยคานหลัก
ทำก่อนการประกอบเพื่อให้แน่ใจว่ามีความเท่าเทียมและความสมดุล
4. การชุมนุมรถเข็น\/รอก
กรอบรถเข็นถูกประดิษฐ์และติดตั้ง:
กลไกการยก 50t (Hoist)
กลองเชือกลวดมอเตอร์เกียร์และชุดตะขอ
สายเคเบิลไฟฟ้าและกล่องควบคุมติดตั้งบนรถเข็น
Hoist และ Trolley ทดสอบฟังก์ชั่นก่อนการติดตั้งบนคาน
5. การตัดเฉือนและการขุดเจาะ
การตัดเฉือน CNC ที่แม่นยำสำหรับการติดตั้งรูไกด์รางและอินเทอร์เฟซที่อยู่อาศัยเกียร์
การขุดเจาะจุดสวิตช์ขีด จำกัด วงเล็บสายเคเบิลและรั้ว
ชิ้นส่วนเครื่องจักรที่ตรวจสอบด้วยคาลิปเปอร์และมาตรวัดเพื่อตรวจสอบความคลาดเคลื่อน
6. การตรวจสอบการเชื่อมและการทดสอบแบบไม่ทำลาย (NDT)
ข้อต่อที่เชื่อมทั้งหมดได้รับ:
การทดสอบอัลตราโซนิก (UT)
การตรวจสอบอนุภาคแม่เหล็ก (MPI)
การตรวจสอบด้วยภาพเชื่อม
การซ่อมแซมและทำใหม่ดำเนินการตามต้องการก่อนวาดภาพ
7. การรักษาพื้นผิวและการวาดภาพ
การพ่นทรายที่พื้นผิวเต็มรูปแบบถึงมาตรฐาน SA2.5
การเคลือบไพรเมอร์ต่อต้านความเสี่ยงตามด้วยสองชั้นของ topcoat อุตสาหกรรม
ความหนาสีสุดท้าย: มากกว่าหรือเท่ากับ 100–120μm
โทนสีที่กำหนดเอง (เช่นสีเหลือง, สีแดง, สีน้ำเงิน)
8. การติดตั้งระบบไฟฟ้า
ติดตั้ง:
แผงควบคุม
ขีด จำกัด สวิตช์
อุปกรณ์ความปลอดภัย
สายเคเบิลระบบเทศกาลหรือวงล้อสายเคเบิล
เชื่อมต่อมอเตอร์เซ็นเซอร์สัญญาณเตือนและอินเทอร์เฟซควบคุม
ดำเนินการทดสอบความต่อเนื่องทางไฟฟ้าและฉนวนกันความร้อน
9. การชุมนุมขั้นสุดท้าย
Mount Main Girders เพื่อสิ้นสุดรถม้าโดยใช้สลักเกลียวหรือการเชื่อมที่มีความแข็งแรงสูง
ติดตั้งรถเข็นลงบนรางรถเครน
ตรวจสอบให้แน่ใจว่ามีการจัดตำแหน่งฐานล้อ, การจัดวางเกียร์และการกวาดล้างราง
10. การทดสอบจากโรงงาน (ไขมัน)
ดำเนินการทดสอบการโหลดและโหลด (สูงถึง 125% ของความจุที่ได้รับการจัดอันดับ)
การทดสอบรวมถึง:
การยกและลดลง
การเดินทางของรถเข็น
การเดินทางเครน
ฟังก์ชั่นอุปกรณ์ความปลอดภัย
การทดสอบโหลดแบบไดนามิกตรวจสอบความสมบูรณ์ของกลไกภายใต้การเคลื่อนไหว
11. การบรรจุและการจัดส่ง
ถอดประกอบเข้าไปในโมดูลที่ขนส่งได้
ชิ้นส่วนฉลากและส่วนประกอบ
ใช้ชั้นวางเหล็กลังไม้และบรรจุภัณฑ์ต่อต้านความทนทาน
จัดส่งผ่านรถบรรทุกภาชนะบรรจุหรือชั้นวางแบนขึ้นอยู่กับขนาด
12. การติดตั้งและการว่าจ้างในสถานที่
โครงสร้างเครนประกอบใหม่อีกครั้งที่ไซต์ลูกค้า
ทำการตรวจสอบการจัดตำแหน่งเต็มรูปแบบและกระชับตัวยึดทั้งหมด
ดำเนินการทดสอบโหลดการสอบเทียบและการฝึกอบรมผู้ปฏิบัติงาน
13. การประกันคุณภาพและเอกสาร
จัดทำเอกสารที่สมบูรณ์:
ใบรับรองวัสดุ
บันทึกการเชื่อมและการตรวจสอบ
รายงานทดสอบ
คู่มือการใช้งาน
ภาพวาดไฟฟ้า
การรับรอง CE\/ISO หากจำเป็น

มุมมองการประชุมเชิงปฏิบัติการ:
บริษัท ได้ติดตั้งแพลตฟอร์มการจัดการอุปกรณ์อัจฉริยะและได้ติดตั้งชุดการจัดการและการเชื่อม 310 ชุด หลังจากเสร็จสิ้นแผนจะมีมากกว่า 500 ชุด (ชุด) และอัตราการสร้างเครือข่ายอุปกรณ์จะสูงถึง 95% มีการใช้สายเชื่อม 32 สายแล้วมีการวางแผน 50 สายและอัตราการทำงานอัตโนมัติของสายผลิตภัณฑ์ทั้งหมดถึง 85%





ป้ายกำกับยอดนิยม: Crane Beam Double Beam ที่ใช้กันอย่างแพร่หลาย 50t, China 50t Double Beam Gantry Crane ผู้ผลิตที่ใช้กันอย่างแพร่หลายผู้ผลิตซัพพลายเออร์โรงงาน
คุณอาจชอบ
ส่งคำถาม



























